移転レイアウトから探す賃貸オフィスビルカタログ

西新宿梅村ビル の賃貸オフィス 8階 59.83坪 (197.79m²)

お問い合わせの内容を選択してください
お気に入り追加

賃貸条件

賃料
1,376,090円(@23,000円)
共益費(坪単価)
賃料に含む(@―)
面積
59.83坪 (197.79m²)
保証金(敷金)
8,256,540円(6ヶ月)
更新料
新賃料の1ヶ月分
償却
礼金
入居予定
即日

物件情報

物件名
西新宿梅村ビル 
所在地
東京都渋谷区代々木3-24-3
交通
代々木駅 まで徒歩13分

新宿(東京都)駅 まで徒歩7分

初台駅 まで徒歩12分

都庁前駅 まで徒歩11分

物件タイプ
事務所
取引形態
一般媒介
構造
鉄筋コンクリート造/新耐震
規模
11階建
竣工
2023年11月
契約期間
2年
備考
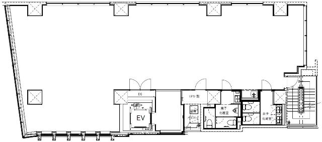
■貸室面積には、EVホール・廊下・トイレ・給湯室の面積が含まれます。 ■11階に共用ルーフテラスあり  ■オートロックシステム連動式エレベーター ■SFビルサポート株式会社と保証委託契約を締結していただきます。 ※与信状況によって預託金額が変動する場合がございます。
注) 上記の価格には、別途、消費税及び地方消費税が課されます。
消費税率が変更された場合には、以後、変更後の税率が課されることとなります。
情報提供会社
サンフロンティア不動産株式会社
情報更新日
2024-10-03
お問い合わせの内容を選択してください

西新宿梅村ビル の周辺地図

現在募集中の区画

階数 面積(坪) 賃料 共益費 詳細
3階 33.85坪 (111.93m²) 618,182円(@―) 無(@―) 詳細
オフィスビルカタログ CATALOG