移転レイアウトから探す賃貸オフィスビルカタログ

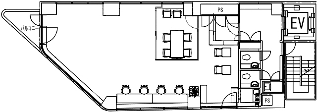
中目黒青葉台ビルの賃貸オフィス 6階 31.33坪 (103.58m²)

お問い合わせの内容を選択してください
お気に入り追加

賃貸条件

賃料
相談(@―)
共益費(坪単価)
相談(@―)
面積
31.33坪 (103.58m²)
保証金(敷金)
相談(―)
更新料
相談
償却
相談
礼金
相談
入居予定
相談

物件情報

物件名
中目黒青葉台ビル
所在地
東京都目黒区青葉台2-21-6
交通
代官山駅 徒歩11分

中目黒駅 徒歩8分

池尻大橋駅 徒歩12分

物件タイプ
事務所
取引形態
一般媒介
構造
鉄骨
規模
地上10階地下1階
竣工
1992年
エレベーター
1基
契約期間
相談
備考
お問い合わせください。
情報提供会社
サンフロンティア不動産株式会社
情報更新日
2025-02-18
お問い合わせの内容を選択してください

中目黒青葉台ビルの周辺地図

現在募集中の区画

階数 面積(坪) 賃料 共益費 詳細
8階 31.33坪 (103.58m²) 相談(@―) 相談(@―) 詳細
オフィスビルカタログ CATALOG