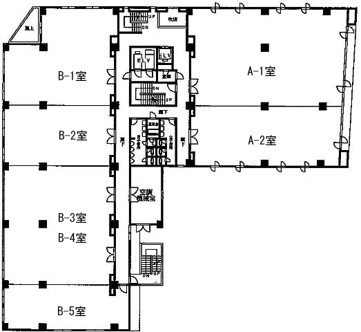
ハイネスロフティビルの賃貸オフィス 2階A-1室 71.33坪 (235.83m²)
賃貸条件
- 賃料
- 相談(@―)
- 共益費(坪単価)
- 相談(@―)
- 面積
- 71.33坪 (235.83m²)
- 保証金(敷金)
- 相談(―)
- 更新料
- 相談
- 償却
- 相談
- 礼金
- 相談
- 入居予定
- 相談
物件情報
- 物件名
- ハイネスロフティビル
- 所在地
- 東京都新宿区西新宿4-32-4
- 交通
- 新宿(東京都)駅 徒歩13分
初台駅 徒歩12分
西新宿駅 徒歩11分
都庁前駅 徒歩6分
西新宿五丁目駅 徒歩9分
- 物件タイプ
- 事務所
- 取引形態
- 一般媒介
- 構造
- 鉄骨鉄筋コンクリート
- 規模
- 地上13階
- 竣工
- 1979年
- 空調
- 個別
- エレベーター
- 2基
- トイレ
- 男女別トイレ
- 契約期間
- 相談
- 備考
- お問い合わせください。
- 情報提供会社
- サンフロンティア不動産株式会社
- 情報更新日
- 2025-02-10
現在募集中の区画
| 階数 |
面積(坪) |
賃料 |
共益費 |
詳細 |
| 2階B-1室 |
48.04坪 (158.84m²) |
相談(@―) |
相談(@―) |
詳細 |
| 3階B-1室 |
48.04坪 (158.84m²) |
相談(@―) |
相談(@―) |
詳細 |