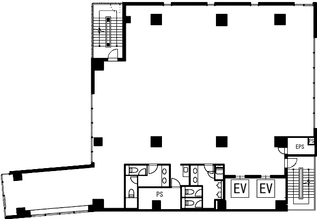
VORT南青山maxim の賃貸オフィス 4階 92.70坪 (306.46m²)
賃貸条件
- 賃料
- 相談(@―)
- 共益費(坪単価)
- 相談(@―)
- 面積
- 92.70坪 (306.46m²)
- 保証金(敷金)
- 相談(―)
- 更新料
- 相談
- 償却
- 相談
- 礼金
- 相談
- 入居予定
- 相談
物件情報
- 物件名
- VORT南青山maxim
- 所在地
- 東京都港区南青山5-153
- 交通
- 渋谷駅 まで徒歩14分
表参道駅 まで徒歩2分
明治神宮前〈原宿〉駅 まで徒歩14分
- 物件タイプ
- 事務所
- 取引形態
- 一般媒介
- 構造
- 鉄骨造/新耐震
- 規模
- 9階建
- 竣工
- 2024年10月竣工予定
- 契約期間
- 相談
- 備考
- お問い合わせください。
- 情報提供会社
- サンフロンティア不動産株式会社
- 情報更新日
- 2024-12-17
現在募集中の区画
| 階数 |
面積(坪) |
賃料 |
共益費 |
詳細 |
| 2階 |
92.22坪 (304.88m²) |
相談(@―) |
相談(@―) |
詳細 |
| 3階 |
92.70坪 (306.46m²) |
相談(@―) |
相談(@―) |
詳細 |
| 5階 |
92.70坪 (306.46m²) |
相談(@―) |
相談(@―) |
詳細 |
| 6階 |
92.67坪 (306.38m²) |
相談(@―) |
相談(@―) |
詳細 |
| 7階 |
92.67坪 (306.38m²) |
相談(@―) |
相談(@―) |
詳細 |
| 8階 |
92.67坪 (306.38m²) |
相談(@―) |
相談(@―) |
詳細 |
| 9階 |
92.67坪 (306.38m²) |
相談(@―) |
相談(@―) |
詳細 |