移転レイアウトから探す賃貸オフィスビルカタログ

浜松町ウエストビルの賃貸オフィス 2階 12.57坪 (41.576m²)

お問い合わせの内容を選択してください
お気に入り追加

賃貸条件

賃料
235,000円(@―)
共益費(坪単価)
賃料に含む(@―)
面積
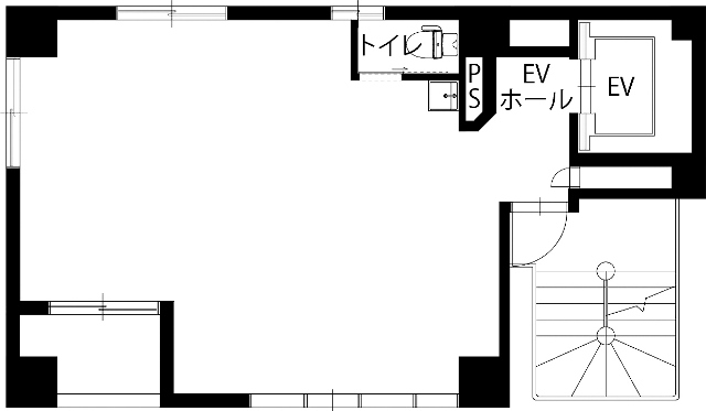
12.57坪 (41.576m²)
保証金(敷金)
940,000円(4ヶ月)
更新料
償却
礼金
入居予定
即日

物件情報

物件名
浜松町ウエストビル
所在地
東京都港区芝公園2-10-4
交通
浜松町駅 徒歩6分

大門駅 徒歩5分

赤羽橋駅 徒歩11分

三田(東京都)駅 徒歩10分

芝公園駅 徒歩4分

御成門駅 徒歩10分

竹芝駅 徒歩11分

日の出駅 徒歩11分

物件タイプ
事務所
取引形態
一般媒介
構造
鉄骨鉄筋コンクリート
規模
地上9階
竣工
1983年 / リニューアル 済み(2014年)
空調
個別
エレベーター
1基
トイレ
男女別トイレ
契約期間
2年
備考
■2019年3月、EVリニューアル工事済! ■SFビルサポート株式会社と保証委託契約を締結していただきます。 ※与信状況によって預託金額が変動する場合がございます。
注) 上記の価格には、別途、消費税及び地方消費税が課されます。
消費税率が変更された場合には、以後、変更後の税率が課されることとなります。
情報提供会社
サンフロンティア不動産株式会社
情報更新日
2025-01-27
お問い合わせの内容を選択してください

浜松町ウエストビルの周辺地図

オフィスビルカタログ CATALOG