移転レイアウトから探す賃貸オフィスビルカタログ

赤坂パークプラザ の賃貸オフィス 4階 92.76坪 (306.66m²)

お問い合わせの内容を選択してください
お気に入り追加

賃貸条件

賃料
相談(@―)
共益費(坪単価)
324,660円(@3,500円)
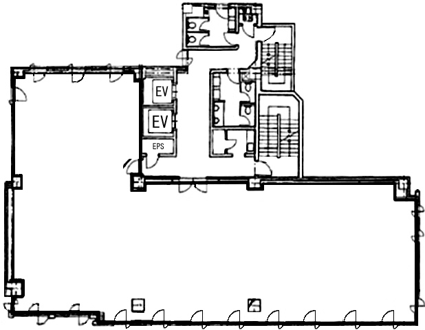
面積
92.76坪 (306.66m²)
保証金(敷金)
―(12ヶ月)
更新料
償却
礼金
入居予定
即日

物件情報

物件名
赤坂パークプラザ 
所在地
東京都港区赤坂6-3-18
交通
溜池山王駅 まで徒歩9分

赤坂見附駅 まで徒歩10分

赤坂(東京都)駅 まで徒歩2分

物件タイプ
事務所
取引形態
一般媒介
構造
鉄骨鉄筋コンクリート造/新耐震
規模
地下1階付6階建
竣工
1997年9月
契約期間
2年
備考
■貸室面積には、トイレ・給湯室等の面積は含まれません。
注) 上記の価格には、別途、消費税及び地方消費税が課されます。
消費税率が変更された場合には、以後、変更後の税率が課されることとなります。
情報提供会社
サンフロンティア不動産株式会社
情報更新日
2025-02-04
お問い合わせの内容を選択してください

赤坂パークプラザ の周辺地図

現在募集中の区画

階数 面積(坪) 賃料 共益費 詳細
5階 92.76坪 (306.66m²) 相談(@―) 324,660円(@3,500円) 詳細
オフィスビルカタログ CATALOG