移転レイアウトから探す賃貸オフィスビルカタログ

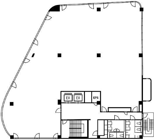
I・O・Bビルの賃貸オフィス 7階 138.56坪 (458.05m²)

お問い合わせの内容を選択してください
お気に入り追加

賃貸条件

賃料
2,355,520円(@17,000円)
共益費(坪単価)
554,240円(@4,000円)
面積
138.56坪 (458.05m²)
保証金(敷金)
23,555,200円(10ヶ月)
更新料
償却
礼金
入居予定
即日

物件情報

物件名
I・O・Bビル
所在地
東京都豊島区西池袋2-41-8
交通
目白駅 徒歩10分

池袋駅 徒歩5分

東池袋駅 徒歩13分

雑司が谷駅 徒歩12分

物件タイプ
事務所
取引形態
一般媒介
構造
鉄骨鉄筋コンクリート
規模
地上10階地下1階
竣工
1991年
エレベーター
2基
契約期間
2年
備考
■耐震構造 ■貸室面積には、トイレ・給湯室等の面積(8.00坪)が含まれます。  ■床荷重:300㎏/㎡  ■電気容量⇒電灯:37VA/㎡(事務所内コンセント回路20A×4回路)、動力:25.95kVA   ■エントランス開放時間:全日6:00~22:00 ※左記時間帯以外は通用口よりセキュリティ操作にて入退館可能
注) 上記の価格には、別途、消費税及び地方消費税が課されます。
消費税率が変更された場合には、以後、変更後の税率が課されることとなります。
情報提供会社
サンフロンティア不動産株式会社
情報更新日
2025-03-07
お問い合わせの内容を選択してください

I・O・Bビルの周辺地図

オフィスビルカタログ CATALOG