



















| 階数 | 面積(坪) | 賃料 | 共益費 | 詳細 | お気に入り |
|---|---|---|---|---|---|
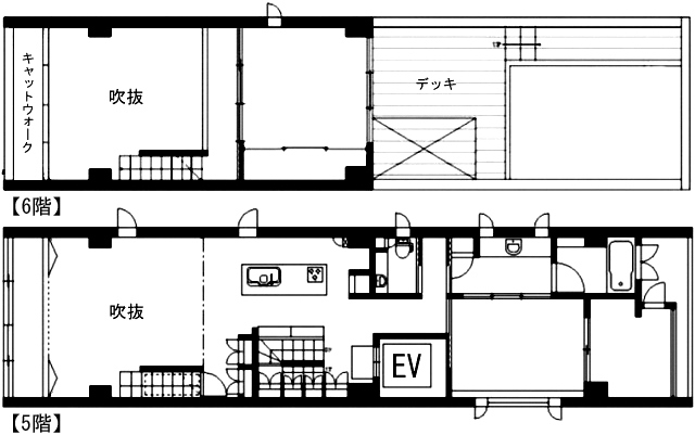
| B1階 | 36.10坪 (119.35m²) | 1,083,000円(@30,000円) | 賃料に含む(@―) | 詳細 |
恵比寿駅 徒歩6分
Q.恵比寿イーストスクエアビルの内見をすることができますか?
Q.恵比寿イーストスクエアビルの空室情報を優先してお知らせいただくことは可能ですか?
Q.物件診断とはどのようなサービスですか?
Q.物件を掲載するにはどうすればよいですか?
恵比寿駅 徒歩6分
26.75坪
恵比寿駅 徒歩6分
80.14坪
恵比寿駅 徒歩6分
恵比寿駅 まで徒歩4分
物件選びでお困りごとはないですか?