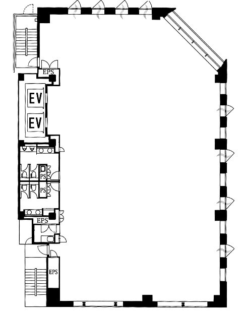
スイテ新御徒町 の賃貸オフィス 6階 140.79坪 (465.41m²)
賃貸条件
- 賃料
- 相談(@―)
- 共益費(坪単価)
- 賃料に含む(@―)
- 面積
- 140.79坪 (465.41m²)
- 保証金(敷金)
- ―(12ヶ月)
- 更新料
- 無
- 償却
- 無
- 礼金
- 無
- 入居予定
- 2025年5月予定
物件情報
- 物件名
- スイテ新御徒町
- 所在地
- 東京都台東区台東4-3-4
- 交通
- 御徒町駅 まで徒歩8分
稲荷町(東京都)駅 まで徒歩7分
仲御徒町駅 まで徒歩7分
新御徒町駅 まで徒歩1分
- 物件タイプ
- 事務所
- 取引形態
- 一般媒介
- 構造
- 鉄骨造/新耐震
- 規模
- 8階建
- 竣工
- 2025年5月竣工予定
- 契約期間
- 年相談(定借)
- 備考
- ■床荷重:500㎏/㎡ ■電気容量⇒コンセント:50VA/㎡、電灯:30kVA
注) 上記の価格には、別途、消費税及び地方消費税が課されます。
消費税率が変更された場合には、以後、変更後の税率が課されることとなります。 - 情報提供会社
- サンフロンティア不動産株式会社
- 情報更新日
- 2025-02-20
現在募集中の区画
| 階数 |
面積(坪) |
賃料 |
共益費 |
詳細 |
| 2階 |
140.79坪 (465.41m²) |
相談(@―) |
賃料に含む(@―) |
詳細 |
| 3階 |
140.79坪 (465.41m²) |
相談(@―) |
賃料に含む(@―) |
詳細 |
| 4階 |
140.79坪 (465.41m²) |
相談(@―) |
賃料に含む(@―) |
詳細 |
| 7階 |
140.79坪 (465.41m²) |
相談(@―) |
賃料に含む(@―) |
詳細 |
| 8階 |
140.79坪 (465.41m²) |
相談(@―) |
賃料に含む(@―) |
詳細 |