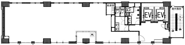
三光町ビルの賃貸オフィス 4階 41.12坪 (136.06m²)
賃貸条件
- 賃料
- 相談(@―)
- 共益費(坪単価)
- 相談(@―)
- 面積
- 41.12坪 (136.06m²)
- 保証金(敷金)
- 相談(―)
- 更新料
- 相談
- 償却
- 相談
- 礼金
- 相談
- 入居予定
- 相談
物件情報
- 物件名
- 三光町ビル
- 所在地
- 東京都新宿区新宿5-17-14
- 交通
- 新宿(東京都)駅 徒歩7分
新大久保駅 徒歩13分
西武新宿駅 徒歩8分
新宿御苑前駅 徒歩9分
新宿三丁目駅 徒歩4分
東新宿駅 徒歩8分
新宿西口駅 徒歩7分
- 物件タイプ
- 事務所
- 取引形態
- 一般媒介
- 構造
- 鉄筋コンクリート
- 規模
- 地上5階地下1階
- 竣工
- 1964年4月
- 契約期間
- 相談
- 備考
- お問い合わせください。
- 情報提供会社
- サンフロンティア不動産株式会社
- 情報更新日
- 2024-12-09
現在募集中の区画
| 階数 |
面積(坪) |
賃料 |
共益費 |
詳細 |
| 2階 |
41.12坪 (136.06m²) |
相談(@―) |
相談(@―) |
詳細 |
| 3階 |
41.12坪 (136.06m²) |
相談(@―) |
相談(@―) |
詳細 |
| 5階 |
41.12坪 (136.06m²) |
相談(@―) |
相談(@―) |
詳細 |
| 6階 |
41.12坪 (136.06m²) |
相談(@―) |
相談(@―) |
詳細 |
| 7階 |
41.12坪 (136.06m²) |
相談(@―) |
相談(@―) |
詳細 |