移転レイアウトから探す賃貸オフィスビルカタログ

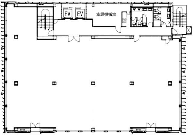
六本木Dスクエアビルの賃貸オフィス 6階 144.00坪 (476.03m²)

お問い合わせの内容を選択してください
お気に入り追加

賃貸条件

賃料
相談(@―)
共益費(坪単価)
賃料に含む(@―)
面積
144.00坪 (476.03m²)
保証金(敷金)
―(12ヶ月)
更新料
償却
礼金
入居予定
即日

物件情報

物件名
六本木Dスクエアビル
所在地
東京都港区六本木2-4-5
交通
溜池山王駅 徒歩12分

神谷町駅 徒歩11分

六本木駅 徒歩7分

赤坂(東京都)駅 徒歩9分

乃木坂駅 徒歩13分

六本木一丁目駅 徒歩3分

物件タイプ
事務所
取引形態
一般媒介
構造
鉄骨鉄筋コンクリート
規模
地上9階地下1階
竣工
1975年 / リニューアル 済み(2010年)
エレベーター
2基
契約期間
2年
備考
■2010年2月、耐震補強工事実施済 ■貸室面積には、トイレ・給湯室等の面積は含まれません。  ■床荷重:300㎏/㎡  ■電気容量:50VA/㎡  ■LED照明 ■エントランス開放時間:平日8:00~20:00
注) 上記の価格には、別途、消費税及び地方消費税が課されます。
消費税率が変更された場合には、以後、変更後の税率が課されることとなります。
情報提供会社
サンフロンティア不動産株式会社
情報更新日
2025-01-22
お問い合わせの内容を選択してください

六本木Dスクエアビルの周辺地図

現在募集中の区画

階数 面積(坪) 賃料 共益費 詳細
5階 144.00坪 (476.03m²) 相談(@―) 賃料に含む(@―) 詳細
オフィスビルカタログ CATALOG