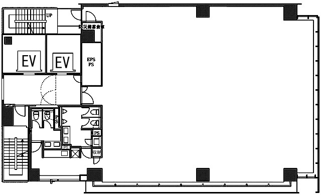
PMO浜松町Ⅲ の賃貸オフィス 4階 92.71坪 (306.51m²)
賃貸条件
- 賃料
- 相談(@―)
- 共益費(坪単価)
- 賃料に含む(@―)
- 面積
- 92.71坪 (306.51m²)
- 保証金(敷金)
- ―(12ヶ月)
- 更新料
- 無
- 償却
- 無
- 礼金
- 無
- 入居予定
- 即日
物件情報
- 物件名
- PMO浜松町Ⅲ
- 所在地
- 東京都港区浜松町2-123-17
- 交通
- 浜松町駅 まで徒歩2分
大門駅 まで徒歩5分
芝公園駅 まで徒歩8分
- 物件タイプ
- 事務所
- 取引形態
- 一般媒介
- 構造
- 鉄骨造(CFT造)/新耐震
- 規模
- 11階建
- 竣工
- 2023年9月竣工予定
- 契約期間
- 3年(定借)
- 備考
- ■床荷重:500㎏/㎡(一部1,000㎏/㎡) ■電気容量:60VA/㎡(75VA/㎡まで増強可能) ■机上平均照度:750Lx ■600㎜角グリッドシステム天井 ■LED照明 ■EV⇒乗用:1基(13人乗)、非常用:1基(17人乗)
注) 上記の価格には、別途、消費税及び地方消費税が課されます。
消費税率が変更された場合には、以後、変更後の税率が課されることとなります。 - 情報提供会社
- サンフロンティア不動産株式会社
- 情報更新日
- 2024-06-18
現在募集中の区画
| 階数 |
面積(坪) |
賃料 |
共益費 |
詳細 |
| 11階 |
92.71坪 (306.51m²) |
相談(@―) |
賃料に含む(@―) |
詳細 |
| 3階 |
92.71坪 (306.51m²) |
相談(@―) |
賃料に含む(@―) |
詳細 |
| 5階 |
92.71坪 (306.51m²) |
相談(@―) |
賃料に含む(@―) |
詳細 |
| 6階 |
92.71坪 (306.51m²) |
相談(@―) |
賃料に含む(@―) |
詳細 |
| 7階 |
92.71坪 (306.51m²) |
相談(@―) |
賃料に含む(@―) |
詳細 |