エルブランカ高輪ビルの賃貸オフィス 10階 151.298坪 (500.16m²)
賃貸条件
- 賃料
- 相談(@―)
- 共益費(坪単価)
- 賃料に含む(@―)
- 面積
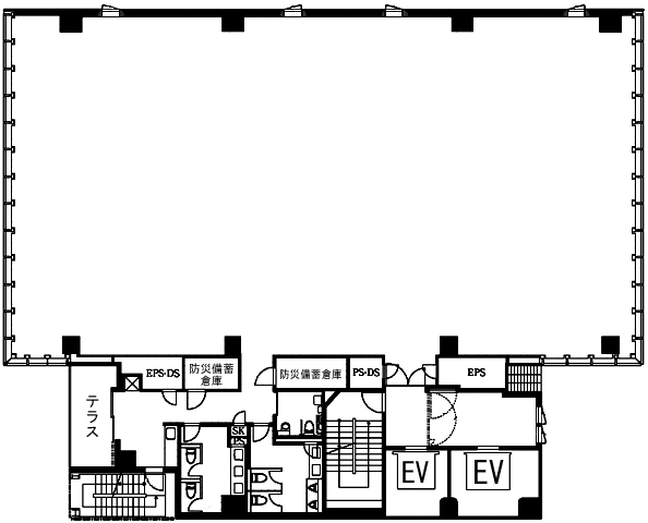
- 151.298坪 (500.16m²)
- 保証金(敷金)
- ―(12ヶ月)
- 更新料
- 無
- 償却
- 無
- 礼金
- 無
- 入居予定
- 即日
物件情報
- 物件名
- エルブランカ高輪ビル
- 所在地
- 東京都港区高輪2-1-3
- 交通
- 泉岳寺駅 徒歩3分
白金高輪駅 徒歩5分
- 物件タイプ
- 事務所
- 取引形態
- 一般媒介
- 竣工
- 2001年9月
- エレベーター
- 1基
- 契約期間
- 3年(定借)
- 備考
- ■貸室面積には、トイレ・パントリーの面積(48.78㎡/14.75坪)が含まれます。 ■床荷重:500㎏/㎡(一部1,000㎏/㎡) ■電気容量:60VA/㎡(75VA/㎡まで増設可能) ■机上平均照度:750Lx ■LED照明 ■システム天井 ■EV⇒乗用:1基(15人乗)、非常用:1基(17人乗)
注) 上記の価格には、別途、消費税及び地方消費税が課されます。
消費税率が変更された場合には、以後、変更後の税率が課されることとなります。 - 情報提供会社
- サンフロンティア不動産株式会社
- 情報更新日
- 2025-01-09
現在募集中の区画
| 階数 |
面積(坪) |
賃料 |
共益費 |
詳細 |
| 4階 |
151.298坪 (500.16m²) |
相談(@―) |
賃料に含む(@―) |
詳細 |
| 5階 |
151.298坪 (500.16m²) |
相談(@―) |
賃料に含む(@―) |
詳細 |
| 7階 |
151.298坪 (500.16m²) |
相談(@―) |
賃料に含む(@―) |
詳細 |
| 8階 |
151.29坪 (500.16m²) |
相談(@―) |
賃料に含む(@―) |
詳細 |
| 9階 |
151.298坪 (500.16m²) |
相談(@―) |
賃料に含む(@―) |
詳細 |