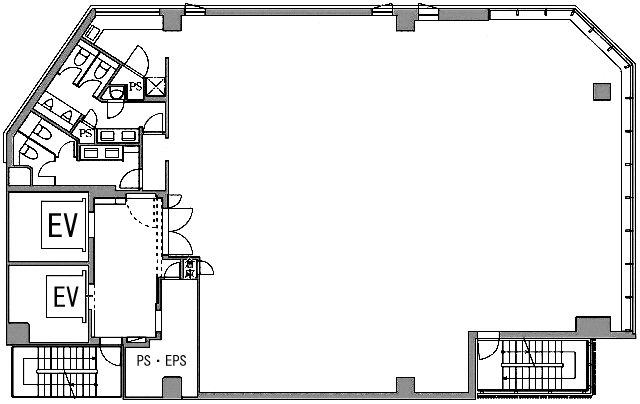
Daiwa新橋510ビルの賃貸オフィス 7階 85.72坪 (283.38m²)
賃貸条件
- 賃料
- 相談(@―)
- 共益費(坪単価)
- 賃料に含む(@―)
- 面積
- 85.72坪 (283.38m²)
- 保証金(敷金)
- ―(12ヶ月)
- 更新料
- 無
- 償却
- 無
- 礼金
- 無
- 入居予定
- 2025年2月1日予定
物件情報
- 物件名
- Daiwa新橋510ビル
- 所在地
- 東京都港区新橋5-10-5
- 交通
- 新橋駅 徒歩6分
浜松町駅 徒歩12分
虎ノ門駅 徒歩12分
神谷町駅 徒歩12分
汐留駅 徒歩5分
大門駅 徒歩10分
御成門駅 徒歩6分
内幸町駅 徒歩9分
- 物件タイプ
- 事務所
- 取引形態
- 一般媒介
- 構造
- 鉄骨鉄筋コンクリート
- 規模
- 地上8階地下1階
- 竣工
- 1974年
- エレベーター
- 2基
- 契約期間
- 3年(定借)
- 備考
- ■床荷重:500㎏/㎡(一部1,000㎏/㎡) ■電気容量:60VA/㎡(75VA/㎡まで増設可能) ■机上平均照度:750Lx ■LED照明 ■システム天井 ■EV⇒乗用:1基(13人乗)、非常用:1基(17人乗)
注) 上記の価格には、別途、消費税及び地方消費税が課されます。
消費税率が変更された場合には、以後、変更後の税率が課されることとなります。 - 情報提供会社
- サンフロンティア不動産株式会社
- 情報更新日
- 2024-12-26
現在募集中の区画
| 階数 |
面積(坪) |
賃料 |
共益費 |
詳細 |
| 10階 |
85.63坪 (283.10m²) |
相談(@―) |
賃料に含む(@―) |
詳細 |
| 11階 |
85.63坪 (283.10m²) |
相談(@―) |
賃料に含む(@―) |
詳細 |
| 13階 |
85.63坪 (283.10m²) |
相談(@―) |
賃料に含む(@―) |
詳細 |
| 5階 |
92.84坪 (306.93m²) |
1,067,660円 |
464,200円(@5,000円) |
詳細 |
| 8階 |
85.72坪 (283.38m²) |
相談(@―) |
賃料に含む(@―) |
詳細 |