移転レイアウトから探す賃貸オフィスビルカタログ

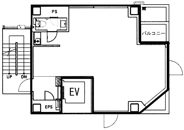
不二ビルディング新橋の賃貸オフィス 12階 17.23坪 (56.97m²)

お問い合わせの内容を選択してください
お気に入り追加

賃貸条件

賃料
相談(@―)
共益費(坪単価)
相談(@―)
面積
17.23坪 (56.97m²)
保証金(敷金)
相談(―)
更新料
相談
償却
相談
礼金
相談
入居予定
相談

物件情報

物件名
不二ビルディング新橋
所在地
東京都港区新橋2-4-5
交通
新橋駅 徒歩4分

銀座駅 徒歩11分

虎ノ門駅 徒歩8分

霞ケ関駅 徒歩10分

日比谷駅 徒歩11分

汐留駅 徒歩9分

御成門駅 徒歩11分

内幸町駅 徒歩2分

物件タイプ
事務所
取引形態
一般媒介
構造
鉄骨鉄筋コンクリート
規模
地上13階地下1階
竣工
2019年
空調
個別
エレベーター
1基
契約期間
相談
備考
お問い合わせください。
情報提供会社
サンフロンティア不動産株式会社
情報更新日
2025-02-28
お問い合わせの内容を選択してください

不二ビルディング新橋の周辺地図

現在募集中の区画

階数 面積(坪) 賃料 共益費 詳細
10階 17.23坪 (56.97m²) 相談(@―) 相談(@―) 詳細
オフィスビルカタログ CATALOG