移転レイアウトから探す賃貸オフィスビルカタログ

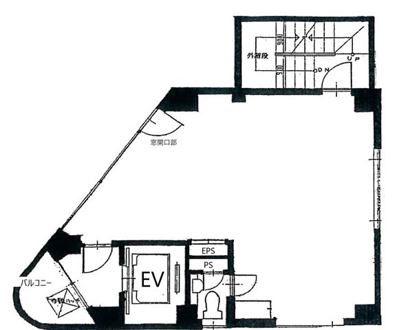
MY三田ビルの賃貸オフィス 4階 12.04坪 (39.83m²)

お問い合わせの内容を選択してください
お気に入り追加

賃貸条件

賃料
240,800円(@20,000円)
共益費(坪単価)
賃料に含む(@―)
面積
12.04坪 (39.83m²)
保証金(敷金)
1,444,800円(6ヶ月)
更新料
新賃料の1ヶ月分
償却
礼金
入居予定
2025年4月9日予定

物件情報

物件名
MY三田ビル
所在地
東京都港区芝5-29-17
交通
田町(東京都)駅 徒歩4分

泉岳寺駅 徒歩11分

白金高輪駅 徒歩13分

赤羽橋駅 徒歩13分

三田(東京都)駅 徒歩4分

芝公園駅 徒歩14分

物件タイプ
事務所
取引形態
一般媒介
構造
鉄骨
規模
地上10階地下1階
竣工
1991年
エレベーター
1基
契約期間
2年
備考
■貸主指定の保険代理店・補償内容による火災総合保険にご加入いただきます。 ■貸主指定の保証会社(フォーシーズ)と保証委託契約を締結していただきます。 ※与信状況によって預託金額が変動する場合がございます。
注) 上記の価格には、別途、消費税及び地方消費税が課されます。
消費税率が変更された場合には、以後、変更後の税率が課されることとなります。
情報提供会社
サンフロンティア不動産株式会社
情報更新日
2025-03-07
お問い合わせの内容を選択してください

MY三田ビルの周辺地図

オフィスビルカタログ CATALOG