移転レイアウトから探す賃貸オフィスビルカタログ

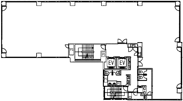
芝L'sビルの賃貸オフィス 5階 105.20坪 (347.75m²)

お問い合わせの内容を選択してください
お気に入り追加

賃貸条件

賃料
相談(@―)
共益費(坪単価)
賃料に含む(@―)
面積
105.20坪 (347.75m²)
保証金(敷金)
―(相談 )
更新料
償却
礼金
入居予定
2024年10月1日予定

物件情報

物件名
芝L'sビル
所在地
東京都港区芝1-5-11
交通
浜松町駅 徒歩7分

田町(東京都)駅 徒歩12分

大門駅 徒歩7分

三田(東京都)駅 徒歩9分

芝公園駅 徒歩7分

竹芝駅 徒歩10分

日の出駅 徒歩7分

物件タイプ
事務所
取引形態
一般媒介
構造
鉄骨鉄筋コンクリート
規模
地上8階地下1階
竣工
1993年
エレベーター
2基
契約期間
年相談
備考
■貸室面積には、トイレ・給湯室等の面積は含まれません。  ■床荷重:300㎏/㎡  ■コンセント容量:50VA/㎡  ■電話回線:100P/フロア ■エントランス開放時間:月~土7:00~20:00、日祝Close ※左記時間帯以外は通用口よりテンキー操作にて入退館可能
注) 上記の価格には、別途、消費税及び地方消費税が課されます。
消費税率が変更された場合には、以後、変更後の税率が課されることとなります。
情報提供会社
サンフロンティア不動産株式会社
情報更新日
2024-05-16
お問い合わせの内容を選択してください

芝L'sビルの周辺地図

オフィスビルカタログ CATALOG