移転レイアウトから探す賃貸オフィスビルカタログ

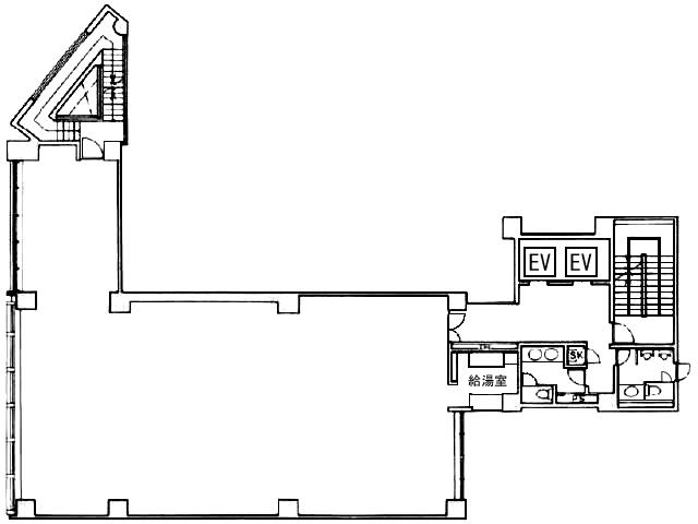
SANKI芝金杉橋ビルの賃貸オフィス 4階 70.98坪 (234.67m²)

お問い合わせの内容を選択してください
お気に入り追加

賃貸条件

賃料
相談(@―)
共益費(坪単価)
相談(@―)
面積
70.98坪 (234.67m²)
保証金(敷金)
相談(―)
更新料
相談
償却
相談
礼金
相談
入居予定
相談

物件情報

物件名
SANKI芝金杉橋ビル
所在地
東京都港区芝1-4-3
交通
浜松町駅 徒歩6分

大門駅 徒歩6分

三田(東京都)駅 徒歩10分

芝公園駅 徒歩6分

御成門駅 徒歩13分

竹芝駅 徒歩9分

日の出駅 徒歩8分

物件タイプ
事務所
取引形態
一般媒介
構造
鉄骨鉄筋コンクリート
規模
地上9階地下1階
竣工
1995年
エレベーター
2基
契約期間
相談
備考
お問い合わせください。
情報提供会社
サンフロンティア不動産株式会社
情報更新日
2025-03-03
お問い合わせの内容を選択してください

SANKI芝金杉橋ビルの周辺地図

現在募集中の区画

階数 面積(坪) 賃料 共益費 詳細
8階 70.98坪 (234.67m²) 相談(@―) 相談(@―) 詳細
オフィスビルカタログ CATALOG