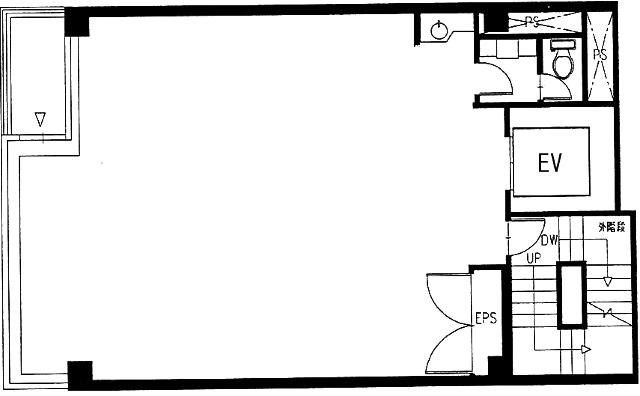
木村実業第2ビルの賃貸オフィス 3階 21.33坪 (70.52m²)
賃貸条件
- 賃料
- 405,270円
- 共益費(坪単価)
- 63,990円(@3,000円)
- 面積
- 21.33坪 (70.52m²)
- 保証金(敷金)
- 4,052,700円(10ヶ月)
- 更新料
- 相談
- 償却
- 賃料の1ヶ月分
- 礼金
- 無
- 入居予定
- 即日
物件情報
- 物件名
- 木村実業第2ビル
- 所在地
- 東京都中央区日本橋茅場町1-4-6
- 交通
- 日本橋(東京都)駅 徒歩5分
茅場町駅 徒歩1分
水天宮前駅 徒歩8分
- 物件タイプ
- 事務所
- 取引形態
- 一般媒介
- 構造
- 鉄筋コンクリート造/新耐震
- 規模
- 地下1階付9階建
- 竣工
- 1991年7月
- 契約期間
- 2年(定借)
- 備考
- ■2019年、全面LED照明リニューアル・個別空調更新済 ■貸室面積には、トイレ・給湯室等の面積が含まれます。 ■弱電:250A以上 ■電気温水洗浄器付トイレ ■貸主指定の清掃会社と契約を締結していただきます。 ※清掃料:月額35,000円
注) 上記の価格には、別途、消費税及び地方消費税が課されます。
消費税率が変更された場合には、以後、変更後の税率が課されることとなります。 - 情報提供会社
- サンフロンティア不動産株式会社
- 情報更新日
- 2022-07-22
現在募集中の区画
| 階数 |
面積(坪) |
賃料 |
共益費 |
詳細 |
| 5階 |
13.60坪 (44.96m²) |
176,800円(@13,000円) |
賃料に含む(@―) |
詳細 |
| 7階 |
21.33坪 (70.51m²) |
415,935円(@19,500円) |
賃料に含む(@―) |
詳細 |