移転レイアウトから探す賃貸オフィスビルカタログ

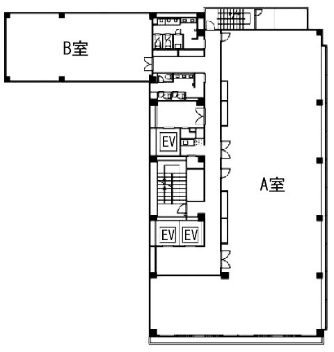
メルクロスビルの賃貸オフィス 3階A室 116.67坪 (385.71m²)

お問い合わせの内容を選択してください
お気に入り追加

賃貸条件

賃料
相談(@―)
共益費(坪単価)
466,680円(@4,000円)
面積
116.67坪 (385.71m²)
保証金(敷金)
―(12ヶ月)
更新料
償却
礼金
入居予定
2025年7月予定

物件情報

物件名
メルクロスビル
所在地
東京都中央区日本橋3-3-9
交通
東京駅 徒歩1分

日本橋(東京都)駅 徒歩2分

物件タイプ
事務所
取引形態
一般媒介
構造
鉄骨造/新耐震
規模
地下1階付9階建
竣工
2014年7月
契約期間
2年
備考
■床荷重:500㎏/㎡(一部800㎏/㎡)  ■コンセント容量:60VA/㎡  ■600㎜角グリットシステム天井  ■机上平均照度:700   ■EV⇒乗用2基(15人乗)、荷捌・非常用1基(26人乗) ■機械式駐車場設備:あり(総台数20台) ※空台数等については個別にお問い合わせください。
注) 上記の価格には、別途、消費税及び地方消費税が課されます。
消費税率が変更された場合には、以後、変更後の税率が課されることとなります。
情報提供会社
サンフロンティア不動産株式会社
情報更新日
2025-03-10
お問い合わせの内容を選択してください

メルクロスビルの周辺地図

オフィスビルカタログ CATALOG