アーバンゲート日本橋の賃貸オフィス 3階 19.91坪 (65.85m²)
賃貸条件
- 賃料
- 480,000円
- 共益費(坪単価)
- 賃料に含む(@―)
- 面積
- 19.91坪 (65.85m²)
- 保証金(敷金)
- ―(無)
- 更新料
- 新賃料の1ヶ月分
- 償却
- 無
- 礼金
- 無
- 入居予定
- 即日
物件情報
- 物件名
- アーバンゲート日本橋
- 所在地
- 東京都中央区日本橋2-16-6
- 交通
- 八丁堀(東京都)駅 徒歩9分
日本橋(東京都)駅 徒歩2分
茅場町駅 徒歩4分
宝町(東京都)駅 徒歩7分
- 物件タイプ
- 事務所 【当社管理物件】
- 取引形態
- 一般媒介
- 構造
- 鉄筋コンクリート造/新耐震
- 規模
- 10階建
- 竣工
- 2019年4月
- 契約期間
- 3年(定借)
- 備考
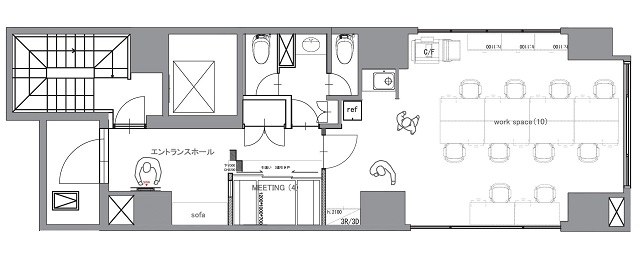
- ☆キャンペーン実施中☆ ■フリーレント最大6ヶ月付与! ※期限:2022年7月末日までにお申込のお客様に限ります。詳細は担当へお問い合わせ下さい。 ■受付台・パーテーション・会議室設置済のセットアップオフィス! ■2022年1月末日、貸室内リニューアル工事実施済! ■貸主指定の保証会社(日商保)と保証契約を締結していただくことで敷金無で入居することができます。保証システムをご利用いただかない場合、敷金10ヶ月分となります。
注) 上記の価格には、別途、消費税及び地方消費税が課されます。
消費税率が変更された場合には、以後、変更後の税率が課されることとなります。 - 情報提供会社
- サンフロンティア不動産株式会社
- 情報更新日
- 2022-06-30
現在募集中の区画
| 階数 |
面積(坪) |
賃料 |
共益費 |
詳細 |
| 10階 |
19.91坪 (65.85m²) |
480,000円 |
賃料に含む(@―) |
詳細 |
| 5階 |
4階 |
なし |
なし |
詳細 |