移転レイアウトから探す賃貸オフィスビルカタログ

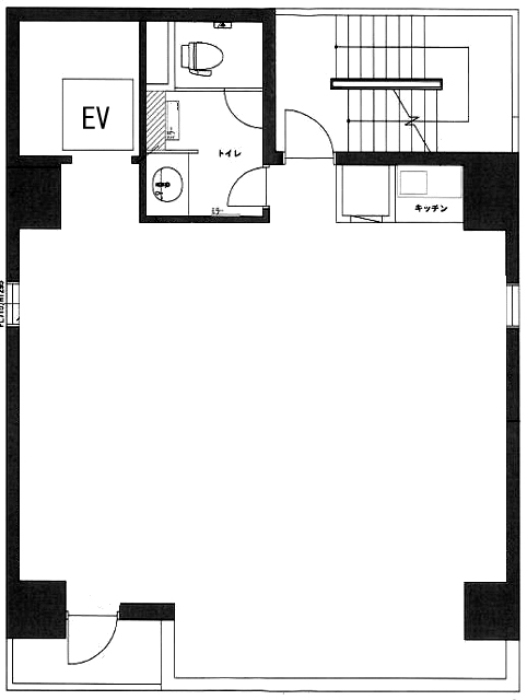
新富太陽ビルの賃貸オフィス 4階 19.71坪 (65.16m²)

お問い合わせの内容を選択してください
お気に入り追加

賃貸条件

賃料
197,100円(@10,000円)
共益費(坪単価)
59,130円(@3,000円)
面積
19.71坪 (65.16m²)
保証金(敷金)
1,182,600円(6ヶ月)
更新料
新賃料の1ヶ月分
償却
賃料の1ヶ月分
礼金
入居予定
即日

物件情報

物件名
新富太陽ビル
所在地
東京都中央区新富2-2-13
交通
八丁堀(東京都)駅 徒歩8分

京橋(東京都)駅 徒歩9分

銀座駅 徒歩10分

築地駅 徒歩7分

東銀座駅 徒歩7分

銀座一丁目駅 徒歩8分

新富町(東京都)駅 徒歩1分

宝町(東京都)駅 徒歩7分

物件タイプ
事務所
取引形態
一般媒介
構造
鉄筋コンクリート
規模
地上7階地下1階
竣工
1992年
エレベーター
1基
契約期間
2年
備考
■SFビルサポート株式会社と保証委託契約を締結していただきます。 ※与信状況によって預託金額が変動する場合がございます。
注) 上記の価格には、別途、消費税及び地方消費税が課されます。
消費税率が変更された場合には、以後、変更後の税率が課されることとなります。
情報提供会社
サンフロンティア不動産株式会社
情報更新日
2023-08-07
お問い合わせの内容を選択してください

新富太陽ビルの周辺地図

オフィスビルカタログ CATALOG