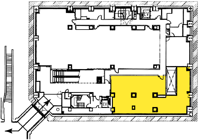
京橋第一生命ビルディング の賃貸オフィス B1階 56.85坪 (187.95m²)
賃貸条件
- 賃料
- 相談(@―)
- 共益費(坪単価)
- 賃料に含む(@―)
- 面積
- 56.85坪 (187.95m²)
- 保証金(敷金)
- ―(12ヶ月)
- 更新料
- 無
- 償却
- 無
- 礼金
- 無
- 入居予定
- 2025年6月予定
物件情報
- 物件名
- 京橋第一生命ビルディング
- 所在地
- 東京都中央区京橋2-4
- 交通
- 東京駅 まで徒歩6分
京橋(東京都)駅 まで徒歩1分
宝町(東京都)駅 まで徒歩3分
- 物件タイプ
- 飲食店舗
- 取引形態
- 一般媒介
- 構造
- S造一部木造、及び地下一部RC造/新耐震
- 規模
- 地下2階付12階建
- 竣工
- 2025年6月竣工予定
- 契約期間
- 年相談(定借)
- 備考
- ■スケルトン渡し ■貸室面積には、共用部の面積は含まれません。 ■電気容量⇒電力:250VA/㎡、動力:250VA/㎡ ■給排水⇒給水:40A、排水:100A×2 ■ガス:191.76kW ■EV⇒低層用:1基、乗用:4基、非常用・人荷用:1基
注) 上記の価格には、別途、消費税及び地方消費税が課されます。
消費税率が変更された場合には、以後、変更後の税率が課されることとなります。 - 情報提供会社
- サンフロンティア不動産株式会社
- 情報更新日
- 2025-01-09
現在募集中の区画
| 階数 |
面積(坪) |
賃料 |
共益費 |
詳細 |
| 1階 |
34.30坪 (113.40m²) |
相談(@―) |
賃料に含む(@―) |
詳細 |
| 3階 |
266.67坪 (881.55m²) |
相談(@―) |
賃料に含む(@―) |
詳細 |
| 4階 |
131.78坪 (435.62m²) |
相談(@―) |
賃料に含む(@―) |
詳細 |
| 5階 |
129.36坪 (427.65m²) |
相談(@―) |
賃料に含む(@―) |
詳細 |
| 6階 |
262.60坪 (868.09m²) |
相談(@―) |
賃料に含む(@―) |
詳細 |