移転レイアウトから探す賃貸オフィスビルカタログ

志村ビルの賃貸オフィス 3階 76.40坪 (252.58m²)

お問い合わせの内容を選択してください
お気に入り追加

賃貸条件

賃料
相談(@―)
共益費(坪単価)
賃料に含む(@―)
面積
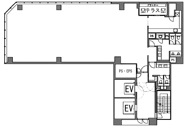
76.40坪 (252.58m²)
保証金(敷金)
―(12ヶ月)
更新料
償却
礼金
入居予定
即日

物件情報

物件名
志村ビル
所在地
東京都中央区入船2-2-2
交通
八丁堀(東京都)駅 徒歩5分

京橋(東京都)駅 徒歩11分

茅場町駅 徒歩12分

築地駅 徒歩7分

東銀座駅 徒歩11分

銀座一丁目駅 徒歩11分

新富町(東京都)駅 徒歩4分

宝町(東京都)駅 徒歩7分

物件タイプ
事務所
取引形態
一般媒介
構造
鉄筋コンクリート
規模
地上4階
契約期間
3年(定借)
備考
■貸室面積には、トイレ・給湯室・備蓄倉庫等の面積(52.60㎡/15.90坪)が含まれます。  ■床荷重:500㎏/㎡  ■コンセント容量:60VA/㎡(75VA/㎡まで増強可能)  ■LED照明   ■EV⇒乗用:1基(13人乗)、非常用:1基(17人乗)
注) 上記の価格には、別途、消費税及び地方消費税が課されます。
消費税率が変更された場合には、以後、変更後の税率が課されることとなります。
情報提供会社
サンフロンティア不動産株式会社
情報更新日
2024-11-01
お問い合わせの内容を選択してください

志村ビルの周辺地図

オフィスビルカタログ CATALOG