移転レイアウトから探す賃貸オフィスビルカタログ

麹町大通りビルの賃貸オフィス 13階 380.05坪 (1256.38m²)

お問い合わせの内容を選択してください
お気に入り追加

賃貸条件

賃料
相談(@―)
共益費(坪単価)
賃料に含む(@―)
面積
380.05坪 (1256.38m²)
保証金(敷金)
―(12ヶ月)
更新料
償却
礼金
入居予定
即日

物件情報

物件名
麹町大通りビル
所在地
東京都千代田区麹町2-4-1
交通
麹町駅 徒歩4分

半蔵門駅 徒歩2分

物件タイプ
事務所
取引形態
一般媒介
竣工
2012年
契約期間
3年(定借)
備考
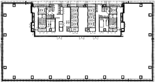
■免震構造   ■貸室面積には、トイレ・給湯室等の面積は含まれません。  ■床荷重:500㎏/㎡  ■電気容量:85VA/㎡(コンセント容量:75VA/㎡)  ■机上平均照度:750Lx  ■600㎜角グリッドシステム天井  ■LED照明 ■その他設備⇒貸会議室・リフレッシュコーナー・喫煙スペース  ■EV⇒乗用:6基(各20人乗)、人荷用:2基(24人乗・17人乗) ■エントランス開放時間:平日6:00~21:00、土日祝Close ※左記時間帯以外は通用口よりセキュリティカード利用にて入退館可能
注) 上記の価格には、別途、消費税及び地方消費税が課されます。
消費税率が変更された場合には、以後、変更後の税率が課されることとなります。
情報提供会社
サンフロンティア不動産株式会社
情報更新日
2024-12-06
お問い合わせの内容を選択してください

麹町大通りビルの周辺地図

オフィスビルカタログ CATALOG