移転レイアウトから探す賃貸オフィスビルカタログ

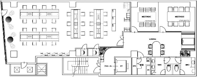
九段北一丁目ビル の賃貸オフィス 4階 56.77坪 (187.67m²)

お問い合わせの内容を選択してください
お気に入り追加

賃貸条件

賃料
相談(@―)
共益費(坪単価)
賃料に含む(@―)
面積
56.77坪 (187.67m²)
保証金(敷金)
―(無)
更新料
償却
礼金
入居予定
即日

物件情報

物件名
九段北一丁目ビル 
所在地
東京都千代田区九段北1-3-5
交通
水道橋駅 徒歩11分

九段下駅 徒歩1分

神保町駅 徒歩5分

物件タイプ
事務所
取引形態
一般媒介
構造
鉄骨鉄筋コンクリート造/新耐震
規模
10階建
竣工
1993年1月
契約期間
2年
備考
■床荷重:300㎏/㎡ ■エントランス開放時間:平日7:00~20:00、土日祝Close ※左記時間帯以外はセキュリティカード利用により24時間入退館可能 ■貸主指定の保証会社と保証契約を締結していただくことで敷金無で入居することができます。  ※保証システムをご利用いただかない場合、敷金は10ヶ月分となります。
注) 上記の価格には、別途、消費税及び地方消費税が課されます。
消費税率が変更された場合には、以後、変更後の税率が課されることとなります。
情報提供会社
サンフロンティア不動産株式会社
情報更新日
2024-11-11
お問い合わせの内容を選択してください

九段北一丁目ビル の周辺地図

現在募集中の区画

階数 面積(坪) 賃料 共益費 詳細
8階 56.77坪 (187.67m²) 相談(@―) 賃料に含む(@―) 詳細
オフィスビルカタログ CATALOG