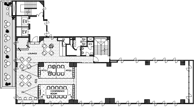
東久ビルの賃貸オフィス 2階 103.00坪 (340.49m²)
賃貸条件
- 賃料
- 相談(@―)
- 共益費(坪単価)
- 賃料に含む(@―)
- 面積
- 103.00坪 (340.49m²)
- 保証金(敷金)
- ―(無)
- 更新料
- 無
- 償却
- 無
- 礼金
- 無
- 入居予定
- 即日
物件情報
- 物件名
- 東久ビル
- 所在地
- 東京都千代田区神田神保町2-40-5
- 交通
- 御茶ノ水駅 徒歩11分
水道橋駅 徒歩7分
九段下駅 徒歩6分
竹橋駅 徒歩11分
新御茶ノ水駅 徒歩12分
神保町駅 徒歩5分
- 物件タイプ
- 事務所
- 取引形態
- 一般媒介
- 構造
- 鉄骨鉄筋コンクリート
- 規模
- 地上7階地下1階
- 竣工
- 1986年 / リニューアル 済み(2014年)
- エレベーター
- 2基
- 契約期間
- 2年
- 備考
- ■2021年、個別空調更新済 ■内装付きでの引渡し相談可能 ■床荷重:300㎏/㎡ ■エントランス開放時間:24時間 ■貸主指定の保証会社と保証委託契約を締結していただきます。 ※締結いただかない場合、預託金額は賃料の6ヶ月分となります。
注) 上記の価格には、別途、消費税及び地方消費税が課されます。
消費税率が変更された場合には、以後、変更後の税率が課されることとなります。 - 情報提供会社
- サンフロンティア不動産株式会社
- 情報更新日
- 2024-05-31
現在募集中の区画
| 階数 |
面積(坪) |
賃料 |
共益費 |
詳細 |
| 3階 |
112.00坪 (370.24m²) |
相談(@―) |
賃料に含む(@―) |
詳細 |
| 4階 |
112.00坪 (370.24m²) |
相談(@―) |
賃料に含む(@―) |
詳細 |
| 7階 |
100.00坪 (330.57m²) |
相談(@―) |
賃料に含む(@―) |
詳細 |
| 地下1階 |
98坪(323.64m²) |
1,274,000円(@13,000円) |
賃料に含む |
詳細 |