移転レイアウトから探す賃貸オフィスビルカタログ

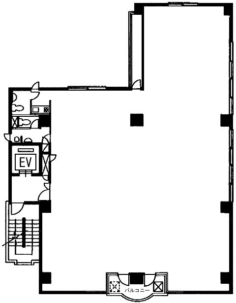
久保田ビルの賃貸オフィス 5階 72.61坪 (240.00m²)

お問い合わせの内容を選択してください
お気に入り追加

賃貸条件

賃料
相談(@―)
共益費(坪単価)
相談(@―)
面積
72.61坪 (240.00m²)
保証金(敷金)
―(6ヶ月)
更新料
新賃料の1ヶ月分
償却
賃料の1ヶ月分
礼金
入居予定
即日

物件情報

物件名
久保田ビル
所在地
東京都千代田区神田和泉町1-12-17
交通
秋葉原駅 徒歩4分

浅草橋駅 徒歩8分

馬喰町駅 徒歩10分

末広町(東京都)駅 徒歩9分

仲御徒町駅 徒歩11分

小伝馬町駅 徒歩12分

岩本町駅 徒歩6分

馬喰横山駅 徒歩12分

物件タイプ
事務所
取引形態
一般媒介
構造
鉄骨鉄筋コンクリート
規模
地上8階
竣工
1988年
空調
個別
エレベーター
1基
契約期間
2年
備考
■貸主指定の保証会社(アース保証)と保証委託契約を締結していただきます。
注) 上記の価格には、別途、消費税及び地方消費税が課されます。
消費税率が変更された場合には、以後、変更後の税率が課されることとなります。
情報提供会社
サンフロンティア不動産株式会社
情報更新日
2025-02-13
お問い合わせの内容を選択してください

久保田ビルの周辺地図

現在募集中の区画

階数 面積(坪) 賃料 共益費 詳細
6階 72.61坪 (240.00m²) 相談(@―) 相談(@―) 詳細
オフィスビルカタログ CATALOG